Capannone in vendita

Colonnella, Via Francesco Savini
€ 1.650.000
6258 Mq 6258 Mq

Capannone in vendita

Colonnella, Via Francesco Savini

Descrizione annuncio

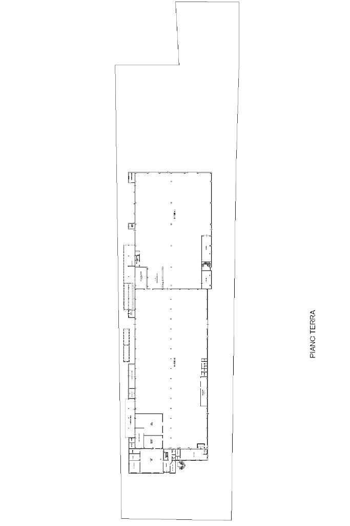
In posizione strategica, nella zona produttiva di Colonnella, proponiamo in vendita un importante complesso industriale sviluppato su una superficie coperta complessiva di 6.258 mq, inserito in un’area completamente recintata e asfaltata di 8.320 mq, con terreno edificabile annesso di ulteriori 1.439 mq.

L’immobile si compone di una palazzina uffici e di un ampio insediamento produttivo suddiviso in due corpi attigui e indipendenti, garantendo così massima flessibilità d’uso e possibilità di suddivisione funzionale.

La palazzina uffici, per una superficie complessiva di 763,5 mq, è distribuita su due livelli e comprende ambienti direzionali luminosi, servizi igienici e una scala esterna di collegamento.

L’area produttiva, di 5.494,5 mq, presenta altezze differenziate: il primo corpo ha un altezza interna di 5,95 mt, mentre i due blocchi successivi raggiungono i 7 mt. Il capannone comprende magazzini, laboratori, spogliatoi, servizi igienici, mensa aziendale e infermeria. Gli ambienti sono realizzati con materiali di qualità e in ottimo stato manutentivo, garantendo elevati standard di sicurezza e funzionalità.

L’immobile dispone inoltre di un pozzo privato dedicato all’impianto antincendio, a ulteriore garanzia della sicurezza dell’insediamento, e di un’ampia area esterna recintata e asfaltata, ideale per la movimentazione di mezzi pesanti, parcheggi o eventuali ampliamenti.

Grazie alla sua posizione logistica favorevole, facilmente raggiungibile dalle principali vie di comunicazione e a pochi chilometri dai caselli autostradali di Val Vibrata e San Benedetto del Tronto, la proprietà rappresenta una soluzione ideale per aziende che necessitano di spazi produttivi di grande metratura con annessi uffici direzionali e servizi di supporto.

Un’opportunità unica per chi cerca un insediamento industriale completo, funzionale e di rappresentanza, pronto per essere utilizzato o adattato alle più diverse esigenze produttive e logistiche.

Mostra tutto

Nelle vicinanze

Trasporto pubblico Trasporto pubblico
Trasporto pubblico
1,6 Km
Monsampolo del Tronto
Monsampolo del Tronto
1,7 Km
Monteprandone
Monteprandone
2,0 Km
Ricariche auto elettriche Ricariche auto elettriche
Conad Centobuchi | enelX
2,7 Km
Scuole Scuole
Scuola Primaria Monteprandone Centobuchi
2,4 Km
Scuola Primaria di Colonnella
2,5 Km
Scuola Secondaria di I° di Colonnella
3,0 Km
Supermercati Supermercati
Conad
2,0 Km
Supermercati
2,9 Km
Negozi Negozi
Negozi
3,0 Km
Bar Bar
Milù
2,1 Km
Bar Daiquiri
2,4 Km
Bar Gelateria Cupido
2,4 Km
Bar Centrale
2,4 Km
Bar 2 Orsi
2,4 Km
Ristoranti Ristoranti
Ristorante Da Marcello
2,1 Km
Agriturismo ranch Fusarò
3,0 Km
Mostra tutto

Caratteristiche

Rif.:
61123999
Piano:
Su più livelli
Condizionamento:
Assente
Ascensore:
No
Riscaldamento:
Autonomo
Libero:
No
Mostra tutto
Prezzo Prezzo
€ 1.650.000
Rata mutuo Rata mutuo
€ 7.832 / mese
Spese annue Spese annue
€ 0
Proponi il tuo prezzoProponi il tuo prezzo

Altre caratteristiche

Descrizione dei locali
Bagno Con Finestra

Classe Energetica

G
G
G
G
G
G
G
G
G
EP globale non rinnovabile:
123.00 kW h/m² anno
EP globale rinnovabile:
123.00 kW h/m² anno
EP invernale del fabbricato:
EP estiva del fabbricato:
Anno di costruzione:
1985
Riscaldamento:
Autonomo
Tipo impianto:
Ad aria
Tipo alimentazione:
Aria

Ti interessa visionare l'immobile?

Fissa un appuntamento  Fissa un appuntamento

Richiedi informazioni

Clicca su Leggi per aprire l'informativa
* Questi campi sono obbligatori

Calcola il tuo mutuo

Semplice e senza impegno
Anticipo

( % )
Mutuo

( % )

pochi semplici passi

inserisci i tuoi dati
Questionario completato
Grazie per aver richiesto un appuntamento senza impegno con un nostro Consulente del Credito e Assicurativo.

Hai inserito correttamente tutti i dati necessari e a breve riceverai una e-mail con un link da convalidare per inviare i tuoi dati.
Affiliato
Progetto Impresa Srl
Via Italia, snc 64023 Mosciano Sant'Angelo (TE)

Il nostro staff


  • Monicanunzia Barnabei
    Affiliata

  • Elena Colasante
    Affiliata

  • Mario D'Angelo
    Collaboratore

  • Pierluigi Donnini
    Collaboratore

  • Francesca Farruggia
    Affiliata

  • Giuseppe Iela
    Affiliato

  • Benedetta Russo
    Coordinatrice

  • Matteo Arveda
    Collaboratore

  • Federico Morelli
    Affiliato
Via Italia, snc 64023 Mosciano Sant'Angelo (TE)
Zona: Giulianova Teramo
Mostra su mappa
Affiliato
Progetto Impresa Srl
Via Italia, snc 64023 Mosciano Sant'Angelo (TE)

2026 Tecnocasa Franchising S.p.A. - P. IVA 08365160152 - Via Monte Bianco 60/A 20089 Rozzano (MI). Ogni agenzia ha un proprio titolare ed è autonoma. Privacy policy | Policy utilizzo | Cookie policy